RIF: 77/25 - 108 MQ - 269.000,00 €
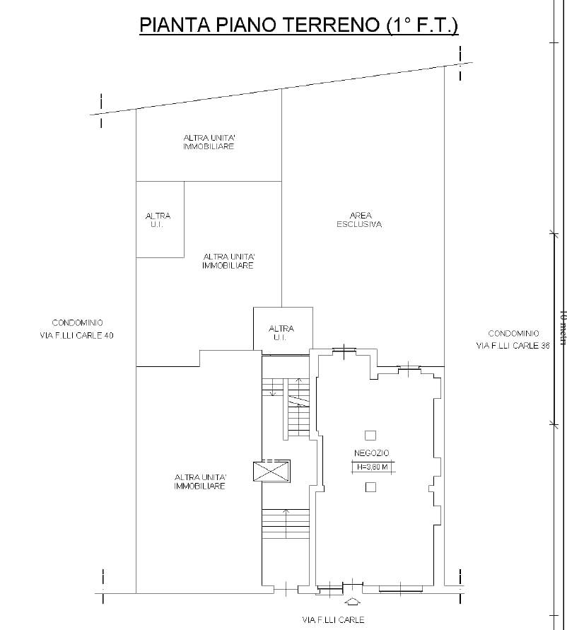
Locale Commerciale VIA FRATELLI CARLE 38 Torino
- PREZZO
269.000 € - TOTALE MQ
108 MQ - LOCALI
3 - PIANO
Piano terra - BAGNI
1

















































LOCALE COMMERCIALE RISTRUTTURATO MURI IN VENDITA IN VIA FRATELLI CARLE 38, CROCETTA
In una delle vie più apprezzate del quartiere Crocetta, proponiamo in vendita i muri di uno storico locale commerciale, recentemente rinnovato con materiali moderni e soluzioni estetiche di grande impatto.
L'ingresso si apre su un ampio negozio con doppia vetrina su strada, entrambe antisfondamento, che garantiscono massima visibilità e sicurezza. L'ambiente principale, luminoso e curato nei dettagli, si presta perfettamente ad attività che richiedono un forte valore espositivo, come mostrano gli allestimenti attualmente presenti.
Dal negozio si accede al laboratorio, un ambiente sorprendentemente ampio e luminoso, ideale per lavorazioni, preparazioni o come spazio creativo multifunzionale. Sono inoltre presenti uffici indipendenti, un locale deposito e un bagno interno.
Un valore aggiunto raro per la zona è la presenza di due patii interni: spazi riservati e versatili, perfetti come estensione dell'attività, zona relax o area espositiva aggiuntiva.
Il locale è dotato di riscaldamento autonomo e climatizzatore, garantendo comfort e gestione ottimale dei consumi.
Grazie alla recente ristrutturazione e alla disposizione degli ambienti, l'immobile si presta a molteplici utilizzi. È possibile sia acquistare la licenza dell'attività presente, sia valutare un cambio di destinazione d'uso, aprendo la strada a diverse tipologie di investimento.
Le informazioni riportate nell'annuncio sono fornite a mero scopo informativo generale e non costituiscono elemento contrattuale.
In una delle vie più apprezzate del quartiere Crocetta, proponiamo in vendita i muri di uno storico locale commerciale, recentemente rinnovato con materiali moderni e soluzioni estetiche di grande impatto.
L'ingresso si apre su un ampio negozio con doppia vetrina su strada, entrambe antisfondamento, che garantiscono massima visibilità e sicurezza. L'ambiente principale, luminoso e curato nei dettagli, si presta perfettamente ad attività che richiedono un forte valore espositivo, come mostrano gli allestimenti attualmente presenti.
Dal negozio si accede al laboratorio, un ambiente sorprendentemente ampio e luminoso, ideale per lavorazioni, preparazioni o come spazio creativo multifunzionale. Sono inoltre presenti uffici indipendenti, un locale deposito e un bagno interno.
Un valore aggiunto raro per la zona è la presenza di due patii interni: spazi riservati e versatili, perfetti come estensione dell'attività, zona relax o area espositiva aggiuntiva.
Il locale è dotato di riscaldamento autonomo e climatizzatore, garantendo comfort e gestione ottimale dei consumi.
Grazie alla recente ristrutturazione e alla disposizione degli ambienti, l'immobile si presta a molteplici utilizzi. È possibile sia acquistare la licenza dell'attività presente, sia valutare un cambio di destinazione d'uso, aprendo la strada a diverse tipologie di investimento.
Le informazioni riportate nell'annuncio sono fornite a mero scopo informativo generale e non costituiscono elemento contrattuale.
Scopri le caratteristiche di questo immobile
Caratteristiche
- TOTALE MQ
108 MQ - LOCALI
3 - PIANO
Piano terra - STATO CONSERVAZIONE
Ottimo - BAGNI
1 - CANTINA
1 - RISCALDAMENTO
Autonomo - SPESE CONDOMINIALI
45 €


